Vivienda en el espacio de pescadores de San Cristóbal.
2009. Carácter residencial.
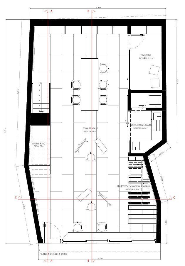
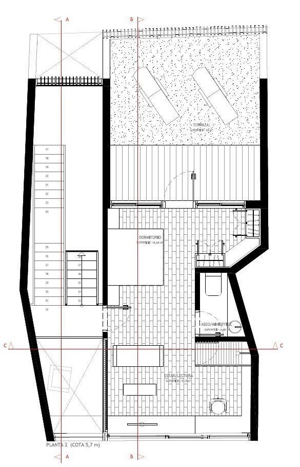
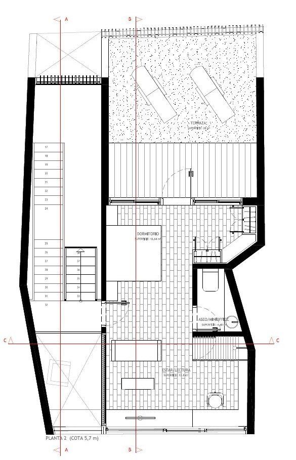
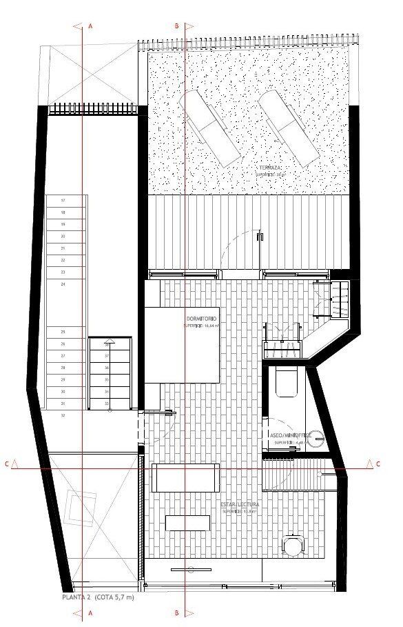
El siguiente proyecto es una vivienda para un artista de pintura que se ubica en el Barrio de pescadores de San Cristóbal, en Las Palmas de Gran Canaria. Cuenta con varias habitaciones, un espacio de estudio y taller, garaje..









