Proyecto Básico y de Ejecución de reforma de vivienda unifamiliar con instalación de ascensor panorámico
2021. Carácter residencial.
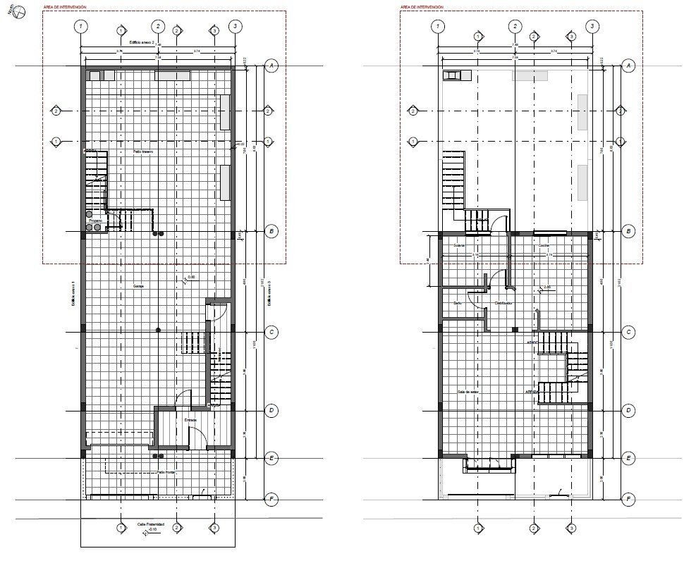
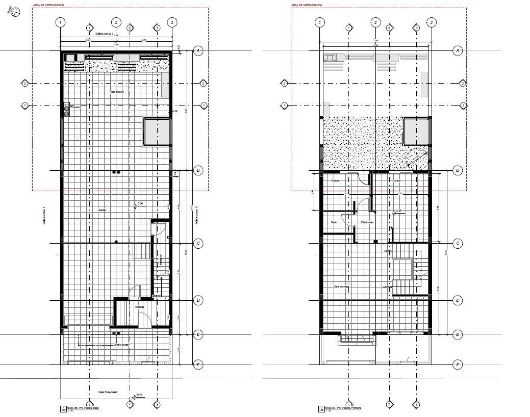
Se trata de un Proyecto de ampliación de vivienda en San Cristóbal de La Laguna, en donde se plantea un ascensor panorámico que conecta cada una de las plantas de la vivienda mediante un sistema de estructura metálica. Se revitaliza el área de patio interior, dotándolo de elementos naturales, siendo el foco de la doble y triple altura de las vistas de la vivienda.



















