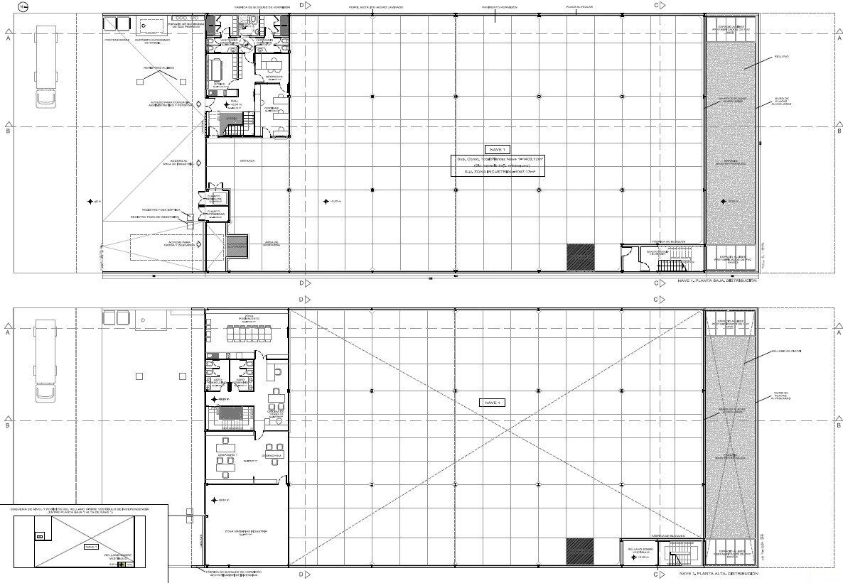
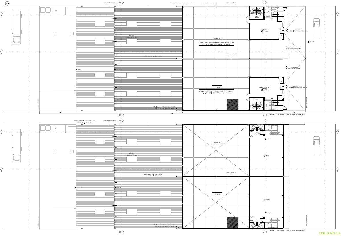
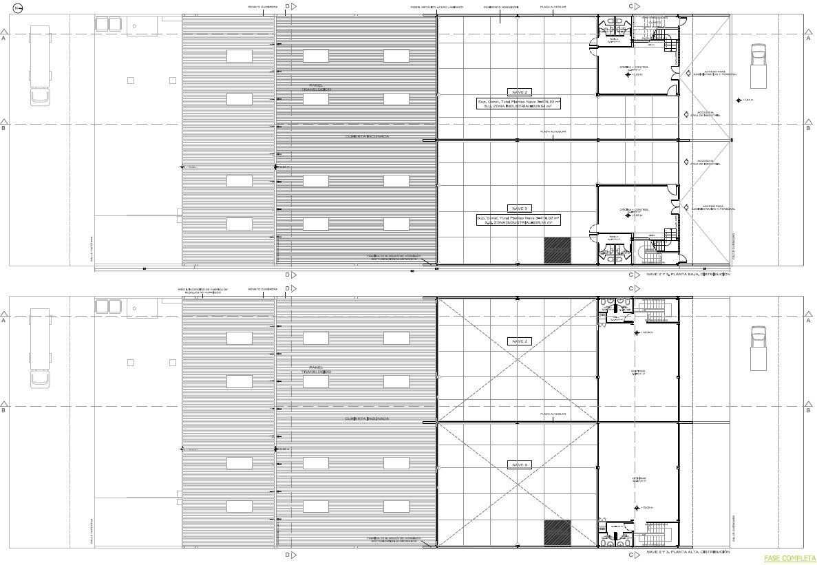
Nave Industrial en el sur de Tenerife.
2016. Carácter industrial.
Confección de proyecto de ejecución de nave industrial para albergar 3 espacios independientes en su interior para distintas empresas. Se trata de un proyecto que juega con las inclinaciones de los planos y contempla la utilización de elementos prefabricados industrializados.






