Reconfiguración de espacio urbano de Escaleritas.
2011. Carácter residencial y servicios.
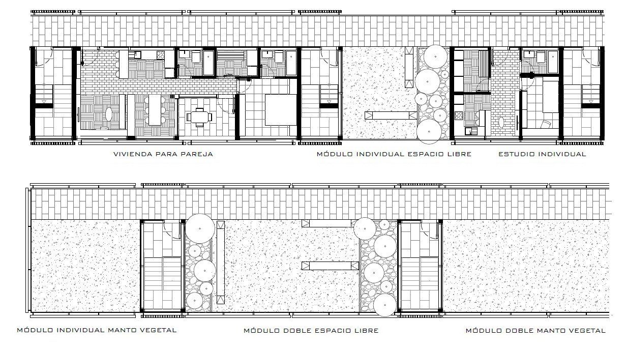
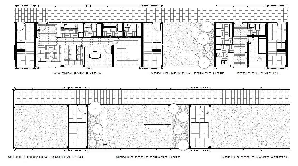
Proyecto Grupal consistente en la reconfiguración del espacio urbano ubicado en Escaleritas, en Las Palmas de Gran Canaria. La intervención consiste en la rehabilitación y reforma de los bloques residenciales existentes, mediante una arquitectura que potencia y revaloriza los espacios de la zona. Asimismo se plantean equipamientos como biblioteca, zonas deportivas, áreas verdes, centro escolar, etc... que convierten la zona en nuevo núcleo atractor, y desencadena el proceso de gentrificación al lugar. El Proyecto se basa en la cohesión de los bloques existentes mediante una cinta verde que convierte en conjunto en una unidad, pormenorizadamente los bloques se acondicionan y se actúa generando porosidades para conseguir luz y vistas.







