División horizontal, tasaciones de viviendas y georreferenciación de inmueble ubicado en calle Campo y Tamayo, La Laguna.
2024. Carácter residencial y comercial.
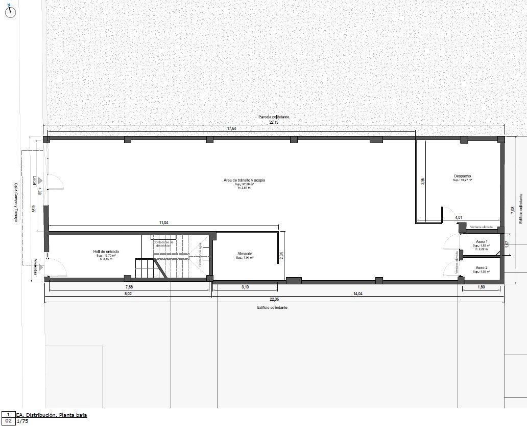
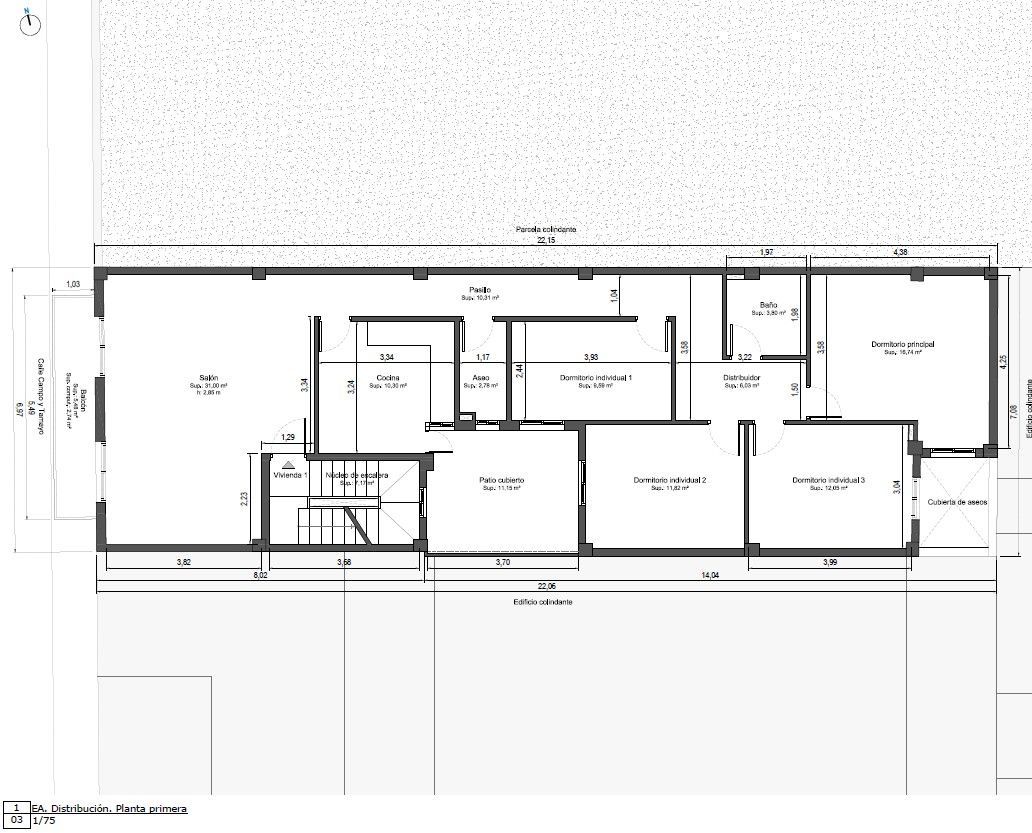
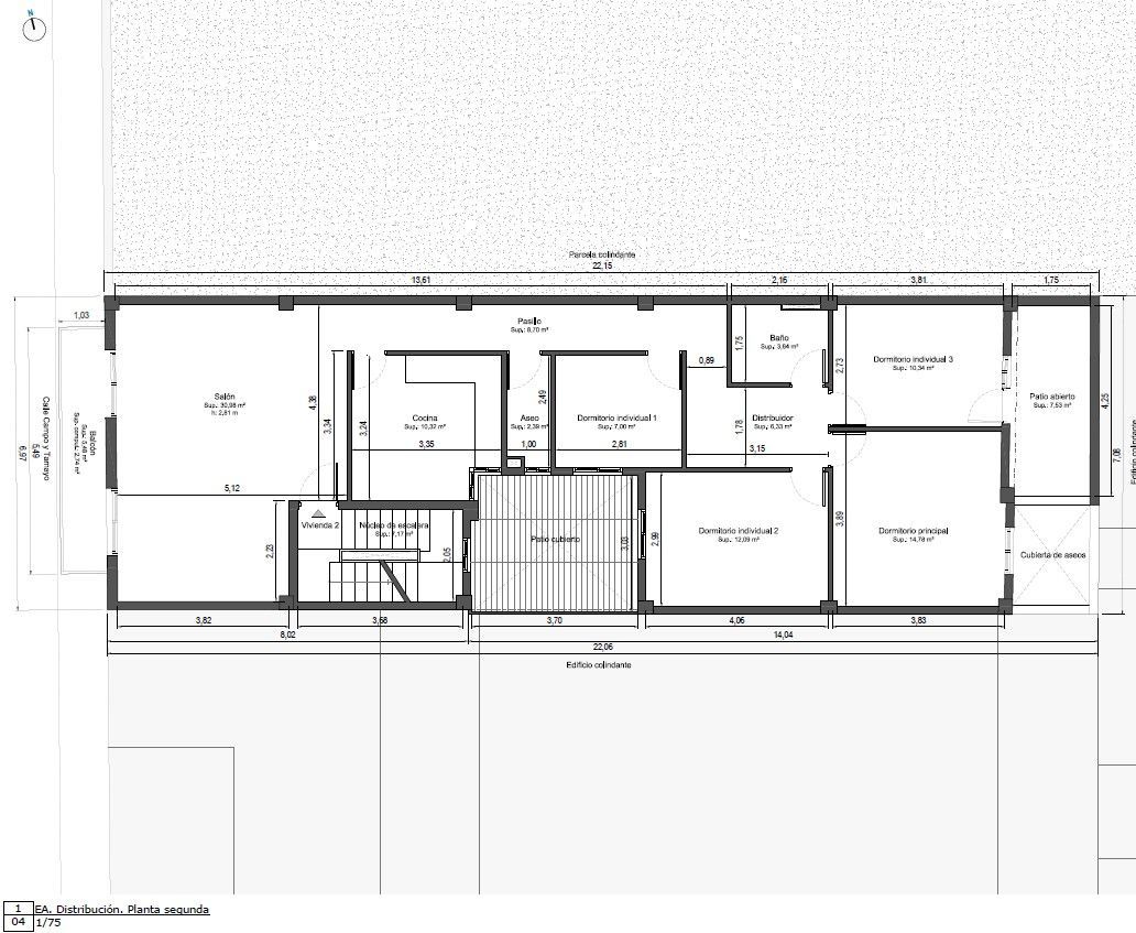
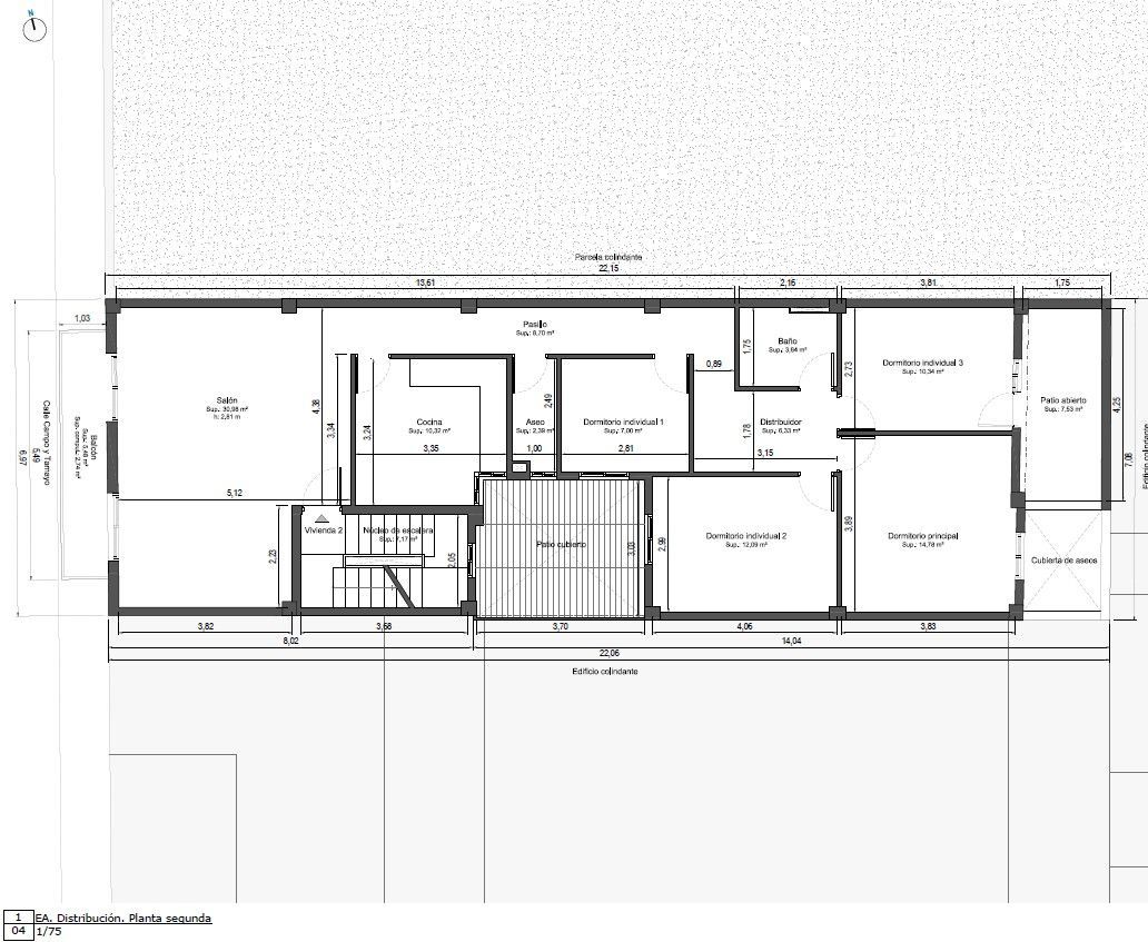
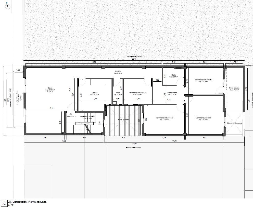
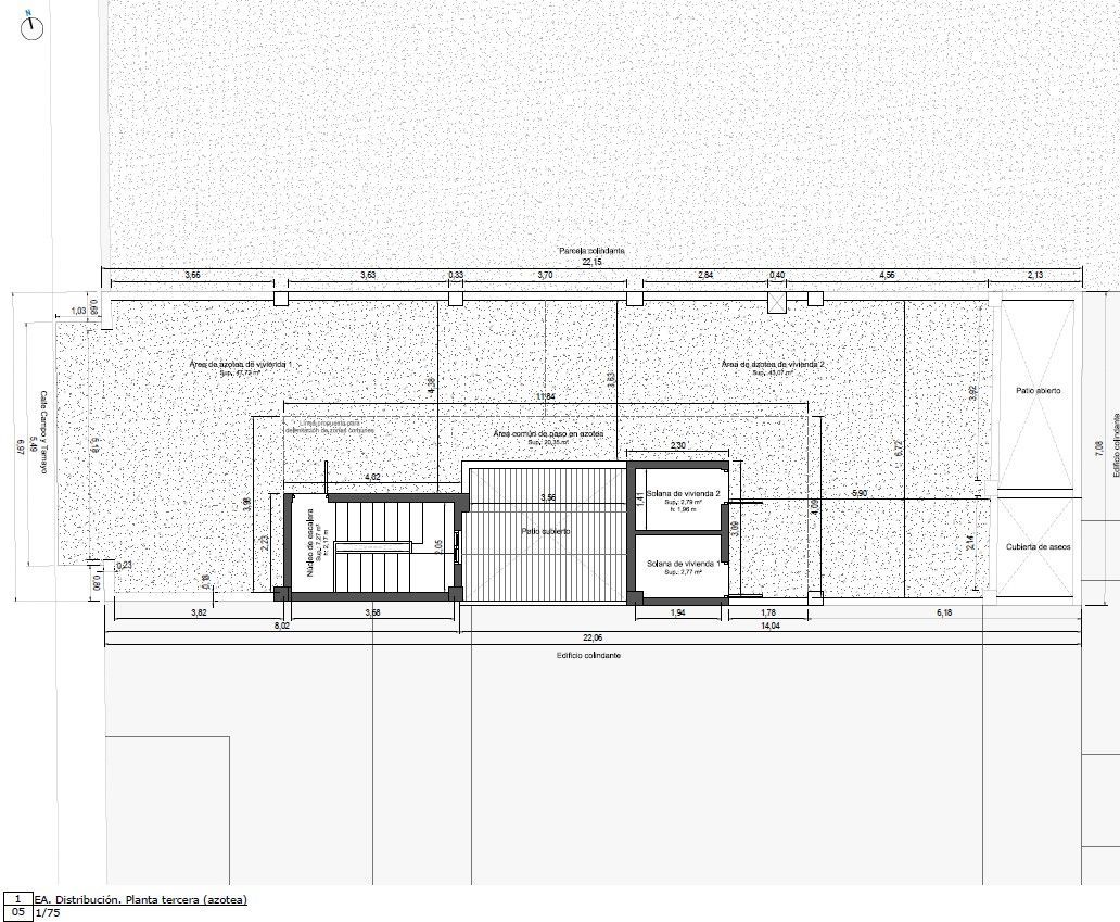
Redacción de documentos técnicos varios en relación a inmueble existente en la calle Campo y Tamayo, San Cristóbal de La Laguna. Se confeccionó la división horizontal del inmueble que refleja la independencia de cada una de las partes constituyentes que consisten en dos viviendas y un local, correspondiéndoles un porcentaje de zonas comunes a razón de la proporción de las superficies inherentes privativas de cada parte, anexándose la georreferenciación de la parcela y del inmueble. Asimismo se produjo la tasación de las áreas de carácter residencial.






