Edificio de apartamentos en Finca España, San Cristóbal de La Laguna
2023. Carácter residencial
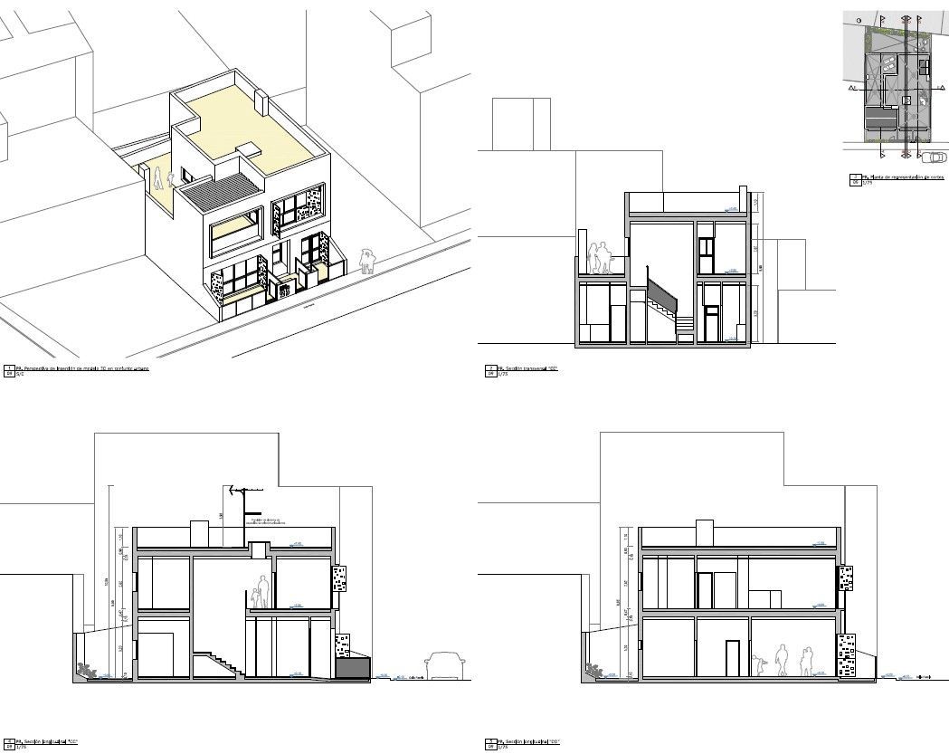
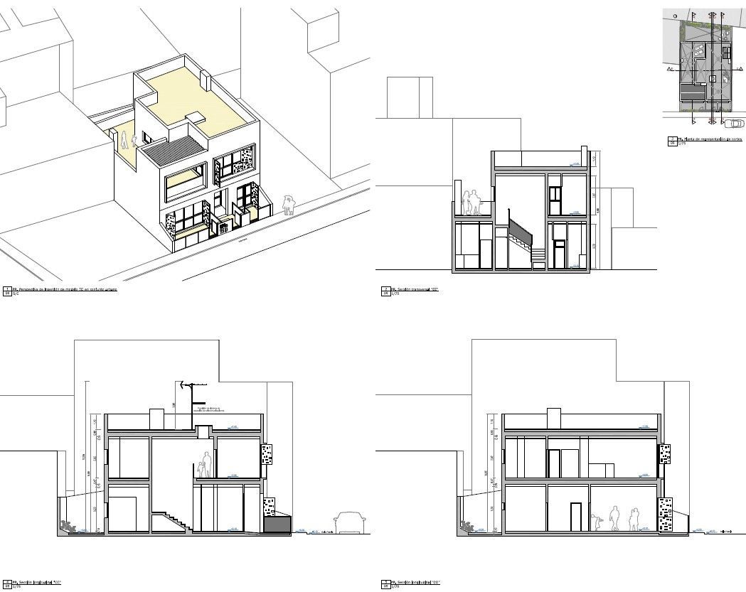
Proyecto de edificio de apartamentos que cuenta con la premisa básica de la construcción paulatina a lo largo del tiempo, ejecutándose en una primera fase la planta baja y el 50% de la planta primera, y en una segunda fase culminar el total de las 3 plantas sobre rasante que permite la
normativa. Para ello se prescriben elementos metálicos y prefabricados para comodidad y eficiencia constructiva.
El conjunto se comporta como un sistema edificatorio con un núcleo central de comunicaciones que instaura una simetría edificatoria y da acceso a cada una de las plantas del edificio, distribuidos en 2 apartamentos por nivel, con vistas frontales a través de la característica abertura remarcada de proporciones áureas, y vistas traseras a patio interior ajardinado. El edificio se retranquea del frente de la calle, lo que permite la generación de un jardín frontal privativo de la planta baja, además de la permisión de vistas diagonales en mayor ángulo a los apartamentos, lo que repercute también en la capacidad de iluminación y la experiencia de habitar en su interior.











