Certificación de antigüedad + georreferenciación + levantamiento planimétrico en La Zarza, Fasnia.
2022. Carácter residencial
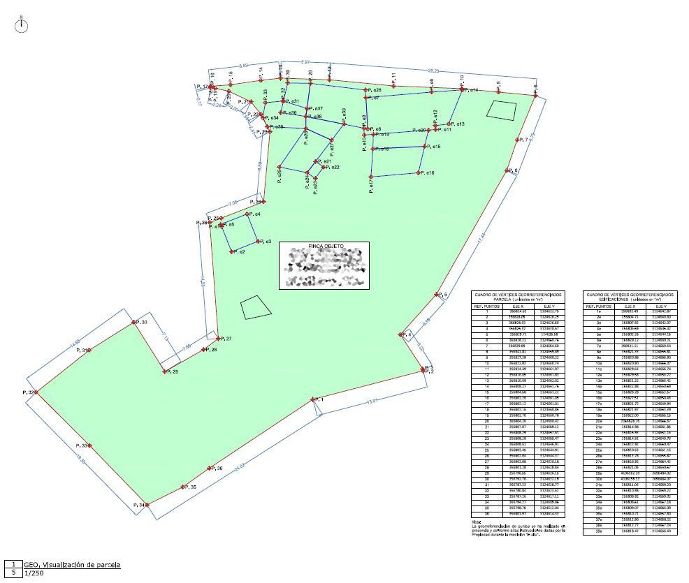
Redacción de Documento Técnico que contempla la determinación de la antigüedad del inmueble existente; una construcción que coloniza el espacio y que se ha desarrollado y ampliado paulatinamente a lo largo del tiempo, estableciéndose la edad constructiva pertinente. También se ha determinado la georreferenciación de los límites de la parcela y de la edificación, la cual contempla inclusive espacios-cueva insertados en el terreno, quedando todo ello reflejado en planimetría.


