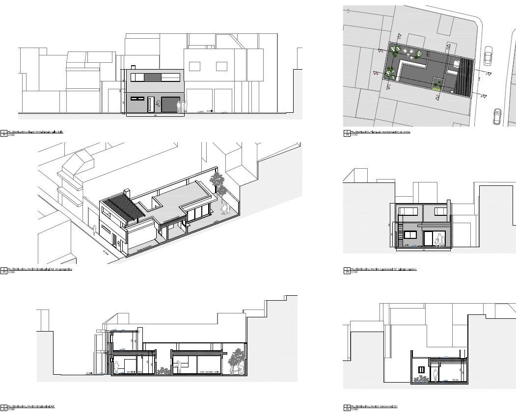
Proyecto Básico y de Ejecución de vivienda unifamiliar adosada en La Cuesta, San Cristóbal de La Laguna.
2023. Carácter residencial
El Proyecto contempla el diseño de una vivienda de obra nueva considerando las preexistencias de la parcela (fachada existente y medianera), reinterpretándolas e incorporándolas al Proyecto.
La vivienda se organiza a partir de un eje principal que da acceso a las distintas estancias, desembocando al característico espacio trasero o jardín en forma de "L" que conforma un maclaje espacial con el volumen edificatorio propuesto. La cubierta se alza en planta primera con la doble función de organizar arquitectónicamente la ampliación futura de la edificación y de cumplir con los requerimientos urbanísticos del PGO y ordenanzas vigentes.







