Certificación de habitabilidad de vivienda localizada en Cruz del Señor, Santa Cruz de Tenerife.
2022. Carácter residencial
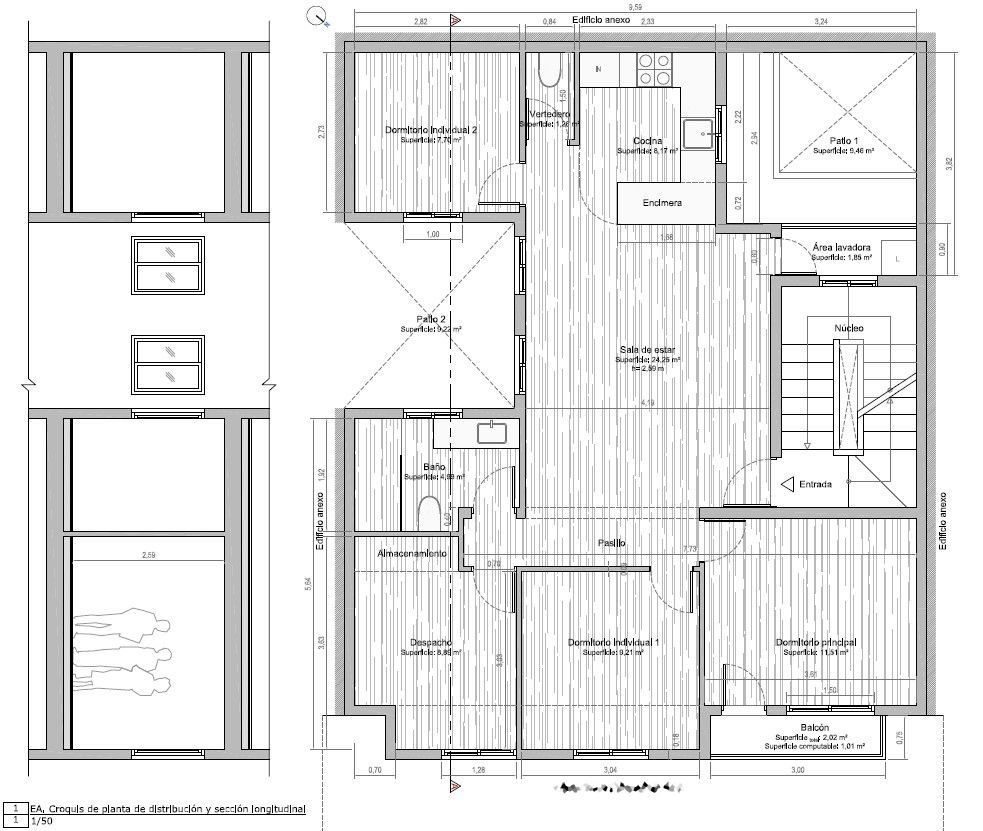
Redacción de Documento Técnico de comprobación de las características de habitabilidad de vivienda localizada en Cruz del Señor, Santa Cruz de Tenerife. Durante el desarrollo del trabajo se ha verificado las dimensiones espaciales, alturas, circulaciones, número de espacios, existencia de áreas específicas, etc... de las diferentes estancias de la vivienda, conforme al Decreto de Habitabilidad vigente.

