Proyecto de vivienda unifamiliar adosada en Los Cristianos, Arona.
2023. Carácter residencial
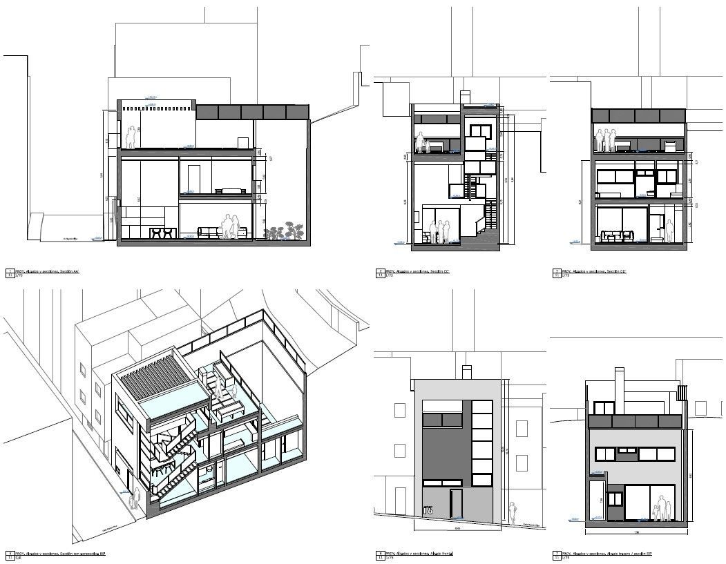
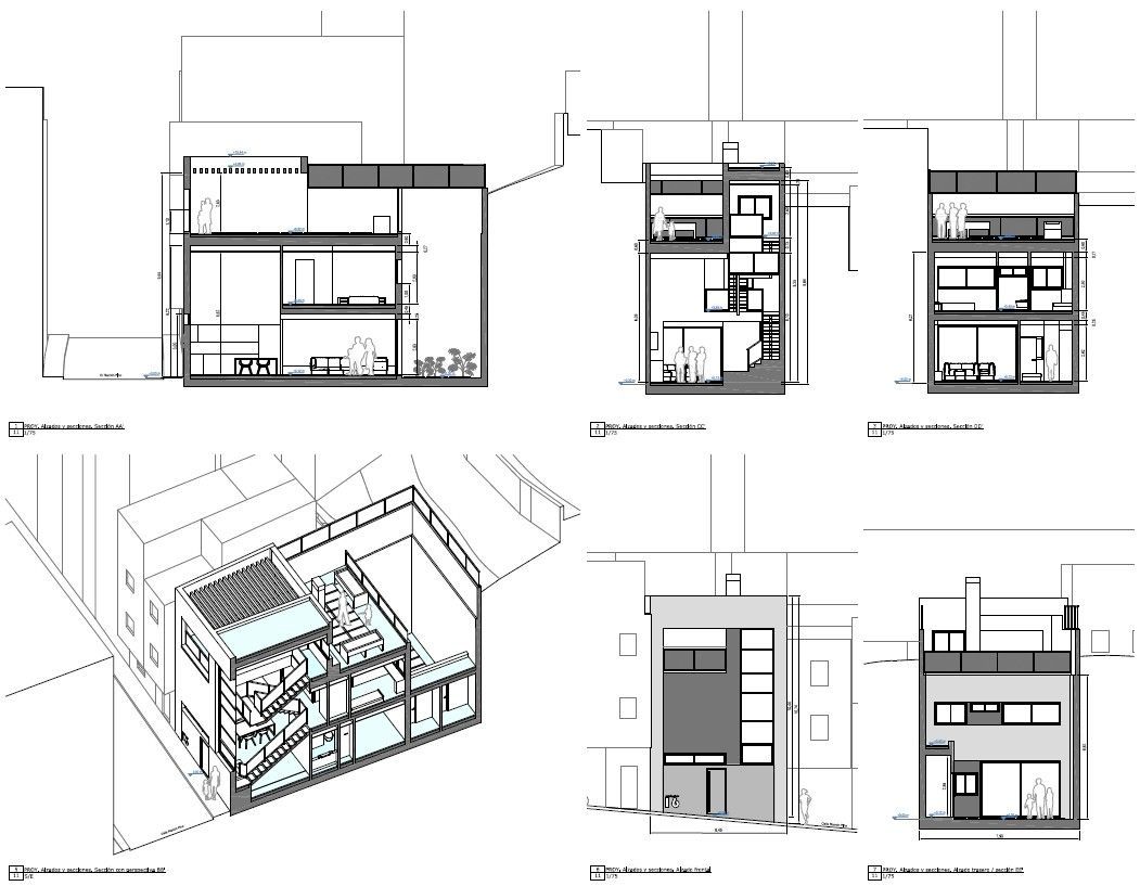
Proyecto de vivienda entre medianeras que se localiza en ubicación de anterior edificación antigua que es objeto de demolición. La nueva construcción se plantea como un conjunto alineado a vial y retranqueado de espacio trasero para albergar un jardín de iluminación, ventilación y uso de ocio.
La vivienda se desarrolla en varias plantas, comunicadas a partir de doble altura vinculada al espacio frontal y al núcleo de comunicaciones expresado por escalera ligera. En planta baja está localizada la cocina-salón-comedor en un gran espacio diáfano que se prolonga y extiende al jardín trasero, el núcleo de comunicaciones, baño y habitación para invitados. La planta primera, a la cual se accede mediante escalera, da conexión a la habitación principal e individual cuyo elemento articulador es un baño compartido requerido por la Propiedad.
En la cubierta tiene lugar la explosión lúdica de la vivienda con solárium, área de lamas para sombra, mirador, huerto urbano e inclusive la capacidad espacial y estructural de albergar una futura piscina. Elementos muy atractivos máxime en el entorno urbano de Los Cristianos, un área caracterizada por la cultura del sol, playa y ocio.






