Proyecto de reconversión de edificios existentes en Gran Canaria.
2015. Carácter residencial.
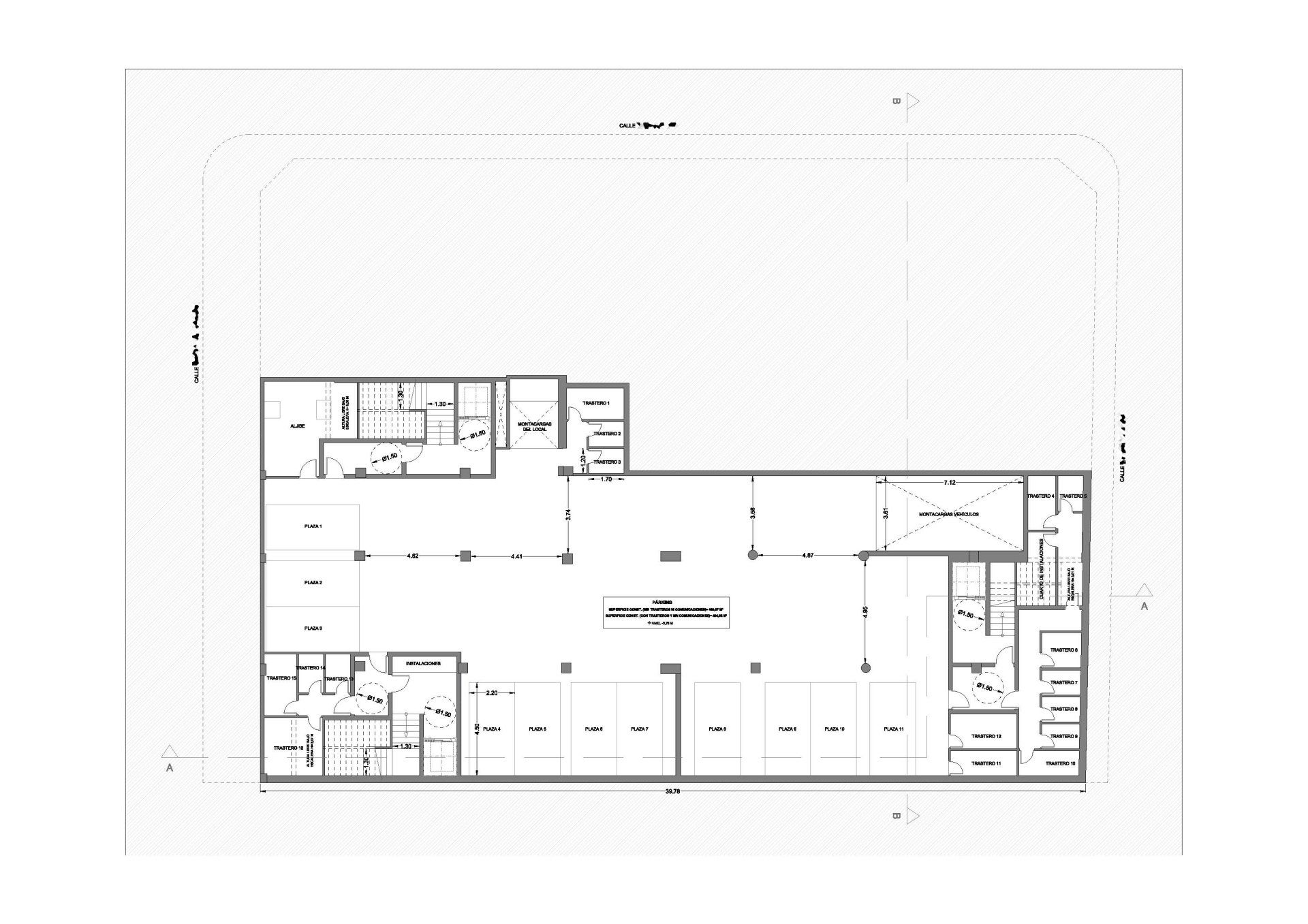
Realización de diseño y delineado de reconversión de edificios en Agüimes (Sur de Gran Canaria), cada uno de ellos de carácter y tipología arquitectónica diferente y con la dificultad añadida de una estructura portante preexistente, distintos niveles entre edificaciones, una formas preestablecidas de las funciones albergadas anteriormente, etc... El objetivo era desarrollar plantas de viviendas en espacios de locales y oficinas en desuso, así como reformar los espacios existentes de viviendas ya construidas y de locales en los que no se iba a cambiar su condición inicial para mejorar sus prestaciones.






