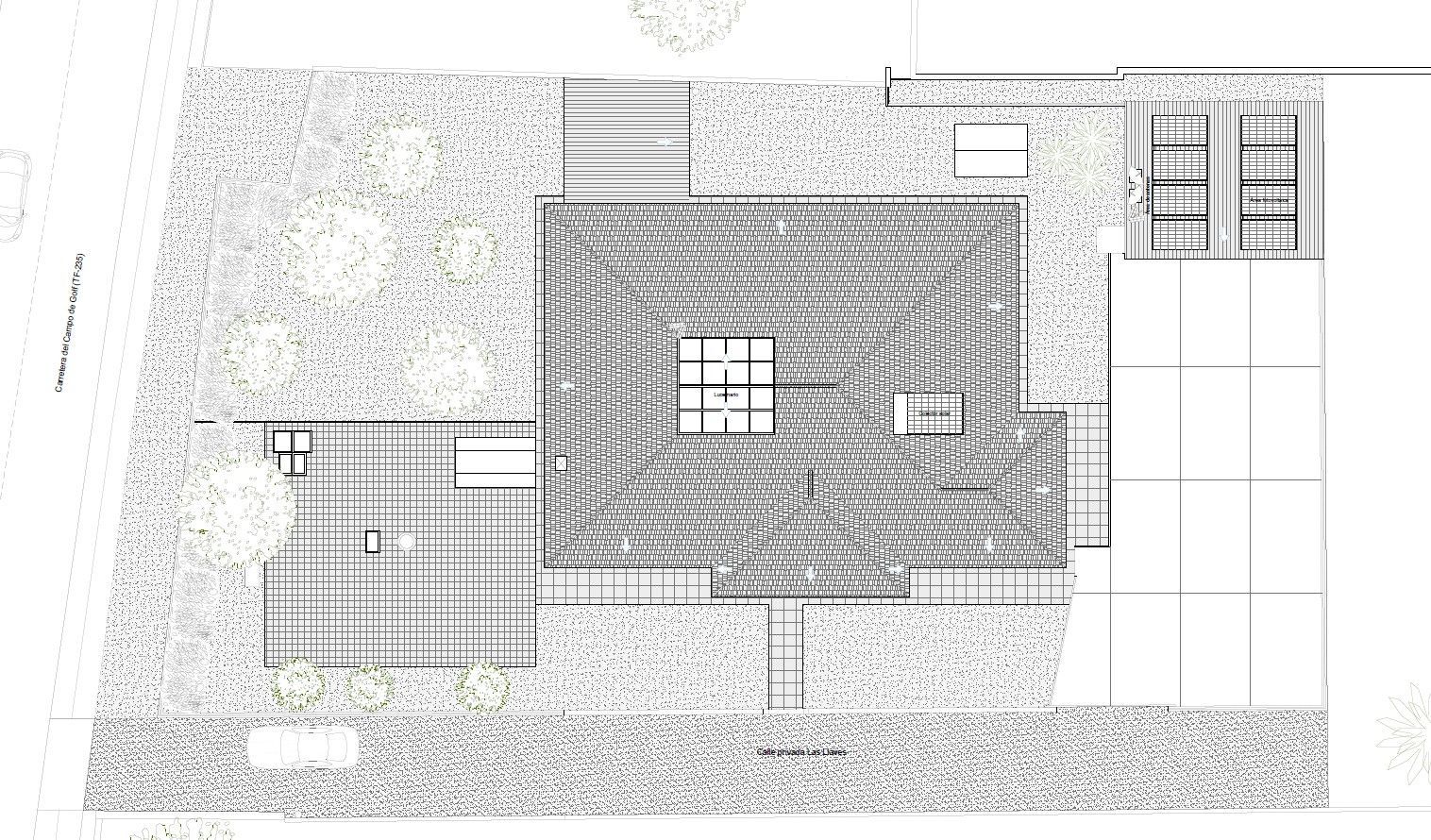
Proyecto Básico y de Ejecución de ampliación de vivienda unifamiliar en Guamasa, San Cristóbal de La Laguna.
2024. Carácter residencial.
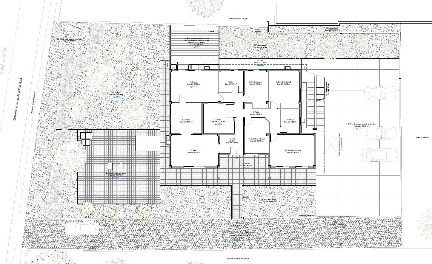
Se trata de una vivienda unifamiliar de más de 30 años de antigüedad sobre la que se plantea la ampliación vertical de la misma para alojar un espacio de invitados. La nueva arquitectura se organiza orbitando respecto al patio existente y sobre la línea de fachada que configuran la edificación aislada. El acceso se produce a través de una nueva escalera adosada con el fin de dar conexión a cada una de las plantas.
En el Proyecto asimismo se incluye la demolición de determinados volúmenes existentes por razones espaciales y urbanísticas. Desde un punto de vista estructural se recurre al uso de materiales prefabricados y ligeros con el fin de aliviar las futuras cargas sobre la estructura existente.











